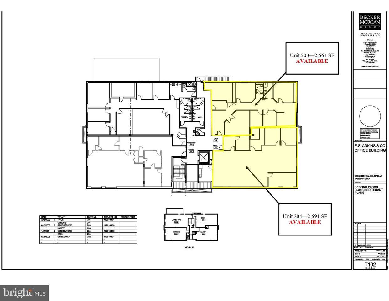
Description
2,691 SF office space with 4 private offices, space for +/- 14 cubicles (large open work space), reception area, break room and a large storage closet. Nicely finished office space with executive offices that have floor to ceiling windows. Second floor space with elevator access and gorgeous entry lobby. Ample on site parking with great visibility and easy access off Route 13. Adjacent suite is also available for an additional 2,600 SF if needed. All leases are structured as a NNN lease.
-
0BEDS
-
N/AACRES
-
0BATHS
-
01/2 BATHS
Description
2,691 SF office space with 4 private offices, space for +/- 14 cubicles (large open work space), reception area, break room and a large storage closet. Nicely finished office space with executive offices that have floor to ceiling windows. Second floor space with elevator access and gorgeous entry lobby. Ample on site parking with great visibility and easy access off Route 13. Adjacent suite is also available for an additional 2,600 SF if needed. All leases are structured as a NNN lease.
©2025 Bright MLS, All Rights Reserved. IDX information is provided exclusively for consumers' personal, non-commercial use and may not be used for any purpose other than to identify prospective properties consumers may be interested in purchasing. Some properties which appear for sale may no longer be available because they are for instance, under contract, sold, or are no longer being offered for sale. Information is deemed reliable but is not guaranteed accurate by the MLS or Nomis Group International | eXp Realty. Some real estate firms do not participate in IDX and their listings do not appear on this website. Some properties listed with participating firms do not appear on this website at the request of the seller. Data last updated: 2025-12-10T07:51:39.6.
